情報更新日:2026年04月25日/広告有効期限:なし
表示閲覧回数(過去30日間):41
お急ぎの方はお電話からお気軽にどうぞ!
076-222-8828 営業時間 / 10:00〜18:00 定休日 / 無休(年末年始を除く)
>物件詳細情報
| 基本情報 | |
|---|---|
| 物件番号 | 10007805874 |
| 店舗形態 | 事務所, レンタルオフィス, 倉庫, 倉庫付事務所 |
| オススメ業種 | 事務所, 倉庫, 工場 |
| 物件名 | 野々市市本町4丁目倉庫付き事務所 |
| 物件の状態 | 空き |
| 引越し時期 | 即 |
| 契約形態と期間 |
定期契約期間:10年間再契約:可 |
| 所在地・交通 | |
|---|---|
| 所在地 | 石川県野々市市本町4-34 |
| 交 通1 | 北鉄バス南野々市 徒歩6分 |
| 交 通2 | - |
| 賃料 | |
|---|---|
| 賃 料 | 660,000円(税込) |
| 敷 金 |
1,800,000円 |
| その他月額費用 1 | 保証更新料2% 13,200円(税込) |
| その他月額費用 2 | 機械警備費 21,890円(税込) |
| 礼 金 | 660,000円(税込) |
| その他 | |
|---|---|
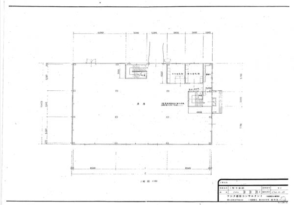
| 備考 | 主要道路157号線至近の好立地にある倉庫付き事務所です!駐車スペースは7台分を確保しており、来客や社用車の利用にも便利です。1階は天井高のある広々とした倉庫スペースで、荷物の保管や作業場としてご利用いただけます。2階には応接室や会議室として利用可能な事務所スペースを備えており、事務所兼倉庫をお探しの方におすすめの物件です(^^)/ 業種や賃貸条件等のご相談も可能ですので、お気軽にお問い合わせください☆ ※現状渡し |
| 建物 | |
|---|---|
| 建物構造 | 鉄骨造 |
| 建物階建て |
地上2階 |
| 施工年月 | 1982(昭和57)年 06月 |
| 募集物件の階数 | 地上 1~2階 |
| 契約面積 | 825m2(249.56坪) |
| 用途地域 | 2種住居 |
| 設備 | |
|---|---|
| 水道 | 公営 |
| 下水道 | 公共下水 |
| ガス | LPG |
| エレベータ | 無 |
| エアコン | 有 |
| トイレ | 有/専用 |
| キッチン | 有/専用 |
| ネット環境 | 無 |
| セキュリティ | 機械警備 |
| 利用時間 | 24時間 |
| シャッター | 有/手動 |
| 照明設備 | 有 |
| 内装業者指定 | 無 |
| 駐車場 | |
|---|---|
| 状 況 | 空有無料 |
| 空き台数 | 7台 |
| 取引情報 | |
|---|---|
| 取引態様 | 媒介 |
| 客付 | 可 |
この物件をチェックした人はこんな物件も見ています
- 白山市千代野ニュータウン内!GENKY千代野中店隣!

石川県白山市5-1-1
787.30m2(238.16坪)
賃料未定
- 「小立野通り」沿い!スーパーマーケット兼住居跡☆

石川県金沢市石引4-4-11
769.22m2(232.69坪)
660,000円(税込)
- 「三口新町」交差点近く!犀川大通りから1本入った閑静な立地で、駐車場4台付き☆

石川県金沢市三口新町4-4-25
54m2(16.34坪)
165,000円(税込)
- 百万石通り沿い!視認性の高いビル2階一室☆

石川県金沢市尾張町1-10-12
120m2(36.30坪)
165,000円(税込)
- 野々市市の「公園つばき通り」へと繋がる生活道路沿い!P1台付き☆

石川県金沢市額新保1-351
100m2(30.25坪)
165,000円(税込)
今日チェックした物件
お急ぎの方はお電話からお気軽にどうぞ!
076-222-8828 営業時間 / 10:00〜18:00 定休日 / 無休(年末年始を除く)


076-222-8828



















076-222-8828