情報更新日:2025年12月13日/広告有効期限:なし
表示閲覧回数(過去30日間):70
お急ぎの方はお電話からお気軽にどうぞ!
076-222-8828 営業時間 / 10:00〜18:00 定休日 / 無休(年末年始を除く)
>物件詳細情報
| 基本情報 | |
|---|---|
| 物件番号 | 10007805845 |
| 店舗形態 | 一棟貸し, 店舗(飲食店可), 一棟貸し, 路面店舗 |
| オススメ業種 | 重飲食, 軽飲食, 美容関係, 事務所 |
| 物件名 | 野々市市三納2丁目Sテナント |
| 物件の状態 | 空き |
| 引越し時期 | 相談 |
| 契約形態と期間 |
普通契約期間:2年間更新料:0.50ヶ月 |
| 所在地・交通 | |
|---|---|
| 所在地 | 石川県野々市市三納2-97-1 |
| 交 通1 | 北鉄バス三納町 徒歩1分 |
| 交 通2 | - |
| 賃料 | |
|---|---|
| 賃 料 | 550,000円(税込) |
| 敷 金 |
2,000,000円 |
| 礼 金 | 550,000円(税込) |
| その他 | |
|---|---|
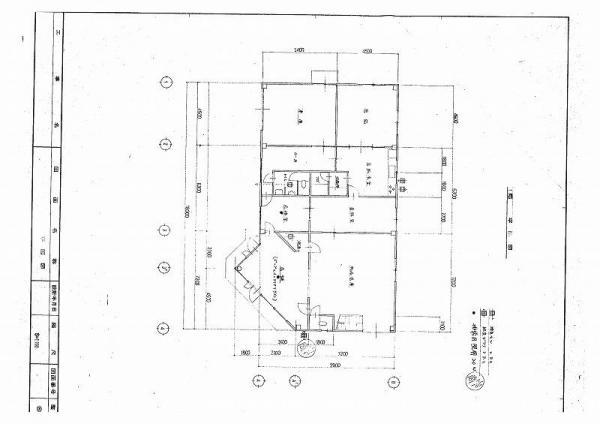
| 備考 | 「野々市市中央通り」角地に位置するテナント物件!お引渡し時の状態は、内部はスケルトン、外部については現在検討中です。現状は、1階:177.79㎡・2階:26.09㎡の構成で、1階部分は一部減築の可能性があります。入居可能時期は26年2月頃を想定しています。賃貸条件については柔軟にご相談いただけますので、ぜひお気軽にお問い合わせください(^^)/ ※貸主インボイス登録済 |
| 建物 | |
|---|---|
| 建物構造 | 鉄骨造 |
| 建物階建て |
地上2階 |
| 施工年月 | 1990(平成2)年 10月 |
| 募集物件の階数 | 地上 1-2階 |
| 契約面積 | 203.88m2(61.67坪) |
| 用途地域 | 2種住居 |
| 設備 | |
|---|---|
| 水道 | 公営 |
| 下水道 | 公共下水 |
| ガス | LPG |
| エアコン | 無 |
| 利用時間 | 24時間 |
| 駐車場 | |
|---|---|
| 状 況 | 空有無料 |
| 空き台数 | 8台 |
| 取引情報 | |
|---|---|
| 取引態様 | 代理 |
| 客付 | 可 |
この物件をチェックした人はこんな物件も見ています
- 金沢市役所裏の柿木畠商店街!ポケットパーク目の前の角地物件☆商店街立地につき、市の補助金申請が可能!

石川県金沢市柿木畠-4-14
36.37m2(11.00坪)
88,000円(税込)
- 白山市千代野ニュータウン内!GENKY千代野中店隣!

石川県白山市5-1-1
787.30m2(238.16坪)
賃料未定
- 「野々市中央通り」の角地!

石川県野々市市三納2-97-1
203.88m2(61.67坪)
550,000円(税込)
- 県道114号線沿いの事務所付き倉庫! 敷地内に約5台分の駐車スペースを確保可☆

石川県金沢市末町-七字12-9
193.74m2(58.61坪)
275,000円(税込)
- 「金沢駅」徒歩6分!人気エリアで新たに住居付き飲食居抜きビルが登場☆

石川県金沢市昭和町-11-20
827.28m2(250.25坪)
2,200,000円(税込)
今日チェックした物件
お急ぎの方はお電話からお気軽にどうぞ!
076-222-8828 営業時間 / 10:00〜18:00 定休日 / 無休(年末年始を除く)


076-222-8828



















076-222-8828